`c[oCtH[Zξv@03`
¦@γΜOΟp[XΝAC[WΕ·B
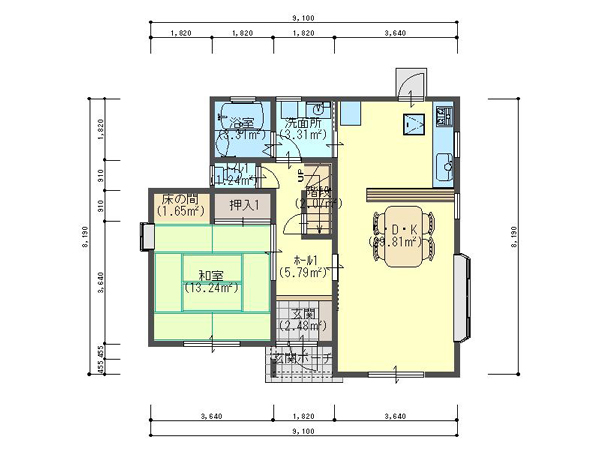
PKv}
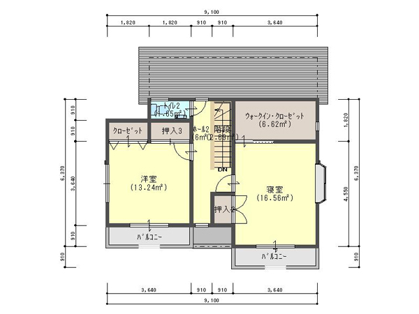
QKv}