有限会社ナワタ不動産は、山口市小郡を中心として不動産に携わるサービスを提供しています。 売買や賃貸のご用命がございましたら、お気軽にお問い合わせください。
マンション
![]() |
![]() |
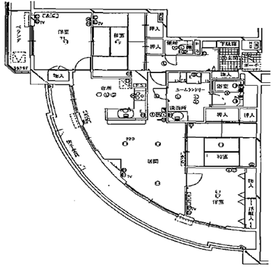
| マンション | |||||||
| 種別 | 中古マンション | 所在地 | 山口市湯田温泉2丁目3-26-202 | ||||
| 価格 | 1,500万円 | 面積 | 104.38u(31.57坪) | ||||
| 用途地域 | 商業地域 | 地目公簿 | 宅地 | ||||
| 都市計画 | 非線引き | その他 | |||||
| 建ぺい率 | 80% | 容積率 | 400% | 引渡し | 要相談 | 取引態様 | 仲介 |
| 道路 | 南西 公道 | ||||||
| 構造 | 鉄骨鉄筋コンクリート造 | 階数 | 12階建 2階部分 | ||||
| 間取り | 4LDK | 建築年月日 | 平成5年3月 | 校区 | 湯田小学校・湯田中学校 | ||
| 設備 | TVインターホン | ||||||
| 交通 | JR山口線 湯田駅 徒歩約6分 | ||||||
| 管理費等 | 管理費:要確認 | ||||||
| 備考 | マンション内駐車場無 近隣で契約可 | ||||||
| お問合せ | 有限会社 ナワタ不動産
山口市小郡黄金町11番10号 地図 083-973-1480 メール |
||||||
地図
| 掲載情報と現状が異なる場合は現状優先とさせて頂きます。 | 更新状況により成約済み物件が掲載されているケースが ございますが、予めご容赦をお願い致します。 |



